- Category : SERVICE
New Construction
Whether a homeowner or developer, the planning stage is the best time to introduce S&S to your project. People often see interior designers as the finishing step but at our firm, we offer value from the very first stages of a New Build.
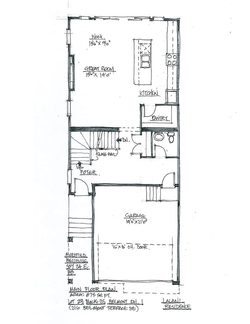
We help eliminate costly mistakes: We do this day and night so we are aware of practical things that a builder may miss like floor outlets, switch placement, which way the doors should swing, properly sized rooms for furniture and function, practical layout, which walls to remove for open flow, bathroom and closet configuration for maximum use just for starters.


The process begins with a chat to get an understanding of who the home is for. Are you the homeowner or are we building a home that will go to market? Next, we discuss the desired style of the project and make sure that the overall architecture aligns with the vision. This discovery call is followed by one of the most important steps, floor plan optimization. This is where we take a deep dive into the floor plan to make sure that we are making the most out of the square footage given.
We then come up with design concepts that align with the style and needs of the homeowner while still adding elevated touches to make the home unique on the market. Our team assists with the selection of all the finishes including cohesive kitchen design where we help select cabinet style and color, countertops, cabinet hardware, lighting, backsplash, etc. These selections are equally important for bathrooms where we help with tile selection and placement, vanity, mirror, and lighting placement. Other finishes include whole house flooring (wood size, type, and color), fireplace tile/stone selections, and even exterior color schemes.
Our organized sourcing method makes it a breeze for homeowners to navigate and understand while freeing up time for the developers to focus on other parts of the project that demand their attention.
Let’s set up a call to see if this service is a great fit for you!


